Объявление снято с публикации Посмотреть все похожие объявления

Сдам производственное помещение, 53,1 м²

ул Болдина, д. 47

13 000 руб.

?

$ 1 086

€ 979

245 руб./м²


53.1 м²

1/1 этажей

Код объекта

84851

Предложение доступно для субагентов, авторизуйтесь

Сдам Производственное помещение, 53,1 м²

Код объекта: 84851.
Тип объекта: Производственное помещение.
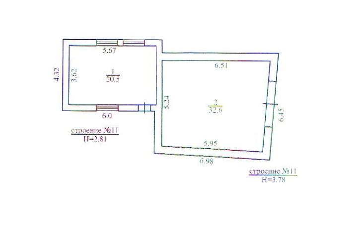
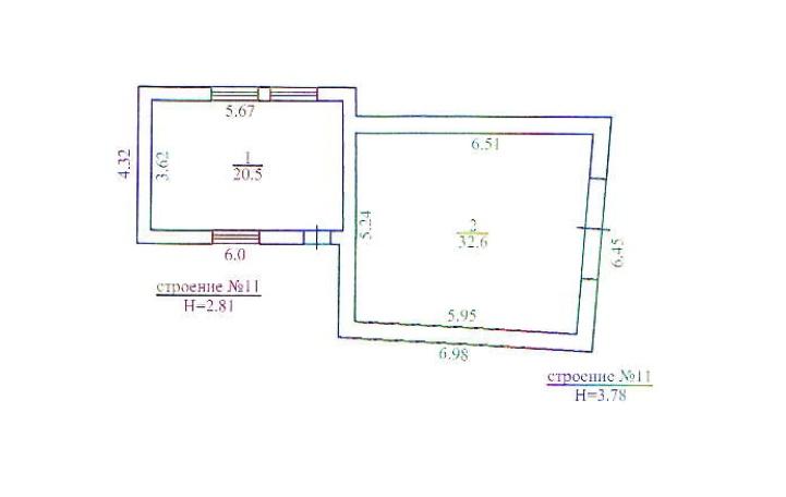
Площадь: 53.1 м².
Этаж / Этажность: 1 / 1.

Описание и характеристики

ОТ СОБСТВЕННИКА. БЕЗ КОМИССИИ.

Сдается в аренду производственно-складское здание, 53,1 кв.м., Калуга, ул.Болдина, д.47.

Основные характеристики здания:
- удобный подъезд, городская черта, расположено в 1 км от окружной автодороги;
- состоит из двух помещений 32,6 кв.м. и 20,5 кв.м., возможно объединение помещений;
- не отапливаемое, возможна установка печки;
- ворота 2,4x2,5м;
- смотровая яма;
- охраняемая территория, круглосуточный доступ, видеонаблюдение.

Возможное использование: склад, производство, автосервис.

По всем вопросам обращаться к Вашему персональному менеджеру:
Калинченко Вячеслав
"АГЕНТСТВО РЕГИОНАЛЬНОГО РАЗВИТИЯ"
Вся коммерческая недвижимость города Калуги.
ОТ СОБСТВЕННИКА. БЕЗ КОМИССИИ.

Перейти в карточку объекта в CRM: 84851.

Денис

+7 900 578-24-44

или оставьте ваш номер, и я перезвоню в течение 30 минут

Отправляя заявку вы соглашаетесь на обработку персональных данных

13 000 руб.

?

$ 173

€ 147

245 руб./м²


53.1 м²

1/1 этажей

Код объекта

84851

К сожалению, этот объект уже сдан или продан. Но вы можете посмотреть похожие варианты или воспользоваться бесплатной услугой подбора подходящего помещения (участка). Для этого оставьте телефон в форме ниже

Денис

+7 900 578-24-44

или оставьте ваш номер, и я перезвоню в течение 30 минут

Отправляя заявку вы соглашаетесь на обработку персональных данных

Объявление снято с публикации

Похожие объявления

Посмотреть все похожие объявления
1/3
Код объекта: 194917.
Тип объекта: Производственное помещение.
Площадь: 63 м².
Этаж / Этажность: 1 / 1.
1/3
Код объекта: 194917.
Тип объекта: Производственное помещение.
Площадь: 63 м².
Этаж / Этажность: 1 / 1.
1/3
Код объекта: 40792.
Тип объекта: Помещение свободного назначения.
Площадь: 267 м².
Этаж / Этажность: 1 / 3.
1/7
Код объекта: 242149.
Тип объекта: Отдельно стоящее здание.
Площадь: 1119 м².
Этаж / Этажность: 1 / 3.
1/10
Код объекта: 376861.
Тип объекта: Складское помещение.
Площадь: 1000 м².
Этаж / Этажность: 1 / 1.
1/4
Код объекта: 204293.
Тип объекта: Помещение свободного назначения.
Площадь: 150 м².
Этаж / Этажность: 2 / 3.
1/6
Код объекта: 204432.
Тип объекта: Помещение свободного назначения.
Площадь: 102 м².
Этаж / Этажность: 1 / 1.

Не хочу искать, перезвоните мне!

Оставьте номер телефона, наш специалист свяжется с вами и поможет с подбором недвижимости!